สยามสเคป

FLOOR PLAN

2,824 VIEW

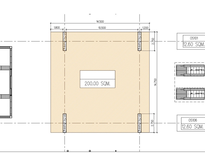
    Siam scape 1fl. Event space by PMCU (ลานกิจกรรมชั้น 1 สยามสเคป)

  • หน่วยงาน: สยามสเคป
  • ขนาดพื้นที่กิจกรรม: 200 ตร.ม.
  • อัตราค่าเช่าต่อวัน: บาท
  • เวลาเปิด-ปิด: 10:00 - 22:00 น


ติดต่อฝ่ายขายพื้นที่

0922252980 / 0994509023
022559994 # 1110,1117

ข้าพเจ้ายอมรับเงื่อนไขการใช้งานของ PMCU และยินยอมให้ส่งข้อมูลส่วนบุคคลของข้าพเจ้าแก่ ลูกจ้าง ผู้รับจ้าง ผู้พัฒนา ตัวแทน และ/หรือผู้ให้บริการที่ได้รับอนุญาตใดๆ เพื่อติดต่อข้าพเจ้าเกี่ยวกับความสนใจในการเช่าพื้นที่ของข้าพเจ้า

พื้นที่ว่างอื่นๆของ สยามสเคป

^